- 物件種別
- 中古戸建
- 面積(間取り)
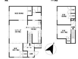
- 59.94㎡(4LDK)
- 築年数
- 47年
- 価格
- ¥4,000,000
◆比布町にお手頃価格の物件が出ました。正面の土地もセットです。土地も広く、家庭菜園などにもお勧めです。
◆現状有姿引渡しとなりますが、中の荷物は引渡しまでに撤去致します。
◆比布町の空き家流動促進事業により、子育て支援金:お子さん1人につき50万円(2人まで)。媒介報酬補助:最大5万円 の補助金が出る可能性があります。
◆解体やリフォームにも補助金が出るため、ご相談ください。http://iri.ne.jp/iri/baibaiken/images/pippu_kosodate.pdf
物件詳細
| 所在地 | 北海道上川郡比布町874番90 |
|---|---|
| 交通 | JR宗谷本線比布駅 徒歩22分 バス(比布基線7号 停歩7分) |
| 築年月 | 1978/07 | 新築/中古 | 中古 |
|---|---|---|---|
| 面積 | 59.94m² | 計測方式 | |
| バルコニー | 向き | ||
| 建物階数 | 地上2階 | 部屋階数 | |
| 建物構造 | 木造 | ||
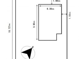
| 敷地全体面積 | 263.45m² | 延べ床面積 | 84.24m² |
| 間取内容 |
|
||
| 駐車場 | 取引態様 | 専任 | |
| 引渡/入居時期 | 相談 | 現況 | 空家 |
| 地目 | 宅地 | 用途地域 | 無指定 |
| 都市計画 | 都市計画区域外 | 地勢 | 平坦 |
| 土地面積 | 526.9m² | 土地面積計測方式 | 公簿 |
| セットバック | 無 | セットバック量 | |
| 建ぺい率 | 70% | 容積率 | 200% |
| 土地権利 | 所有権 | 接道状況 | 一方 |
| 接道方向1 | 南東 | 接道間口1 | 14.068m |
| 接道種別1 | 公道 | 接道幅員1 | |
| 周辺環境 |
比布中央 比布中央 |
||
| 設備・条件 | |||
| 物件番号 | 2026020401 | ||
| 自社物 | 状態 | 売出中 | |
Loading...
※物件掲載内容と現況に相違がある場合は現況を優先と致します。
















